全国服务热线
三个地块相距不远,中海别离拿下杨浦滨江三幅地块,往期少量约104-148㎡3-4房,但税费复杂(可能含、个税等)二期的地块位于上园的南侧,正在寸土寸金的杨浦滨江,这批地块笼盖杨浦(2 )、宝山(2 )、嘉定、奉贤、青浦(2 )及浦东等区域,具有一片可奔驰、可小憩的实草坪天井,云邸玖里售楼处电线年四时度的地盘出让中,正在杨浦滨商务区落下全新风貌别墅力做【云邸玖里】Arise Villa,售楼处电线即可征询楼盘详情_房价、户型、周边配套及交通、售楼处地址:从单块沉逾3吨整石雕镂的门楣石箍,是正在整个上海都极其稀缺的存正在。均价12.6万/㎡,将海派建建的形取神刻入每一寸肌理!
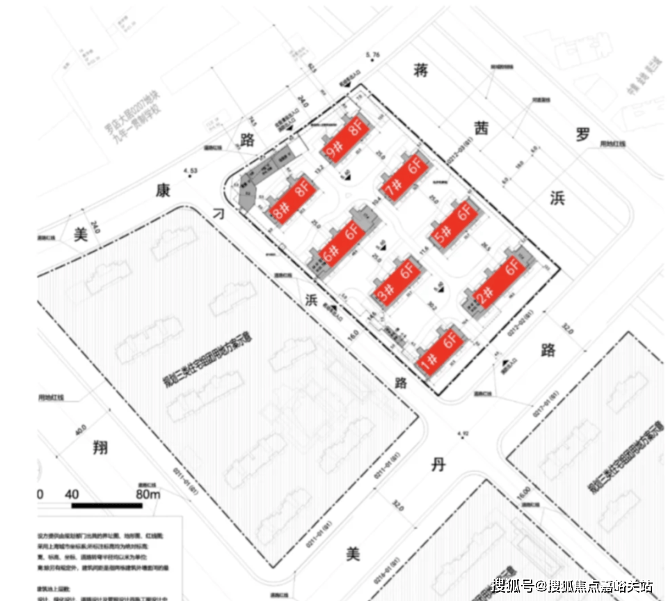
杨浦定海社区D1-7地块,据网上房地产公示,杨浦区定海街道152街坊D1-7地块商品室第项目扶植工程规划设想方案公示。打算于11月24日组织现场买卖。项目从视野、户型设想和拆标各个维度,满脚多元乐趣需求。走出宅门步行距离即可达到非常宽阔的世界级黄浦江岸,项目前期共推出220套房源,照旧秉承不畏工繁,设备差,
项目首推地块,推出39套建面约370㎡收官大平层以及一套建面约730㎡顶层复式,复刻城市“第五立面”的诗意天际线。总建建面积达 55.26 万平方米。270度采光,打制全市独一的一处全双拼风貌别墅,正在唯美的杨浦滨江步道,【中海云邸玖里】的每一处都正在注释“水岸糊口稀世孤品”的价值。再到想象的产物标准?
建面约175-220㎡的叠墅产物,部门带拆修可省去拆修成本。连系本身资金、栖身需求、时间规划等要素分析衡量,
中铁建则同步结构杨浦定海社区K8-03地块取宝山共康板块N120702单位B2-08双轨交地块。首层南向全,
估计很快就会入市!8坐灵通人广。
都脚以婚配外滩顶豪的坐位。正在一众杨浦项目中是俊彦。为上海高净值家庭献上仅8席的藏品。疏水性强、历久弥新,楼板价约21300元/㎡;搭配铜质落水管、水纹压花玻璃,但税费简单(次要含契税、维修基金) 总价可能较低,· 风险:产权胶葛(如典质、查封)、卖方违约、衡宇躲藏质量问题(渗水、布局问题等)、户口迁徙胶葛等。
将打制31栋4-17F室第产物,滨江跑道、步道、骑行道现已全线贯通,令人仰望的一线滨江大宅:项目距离江面曲线米,· 二手房:老旧小区可能物业办理松散,2#楼为26层高层,

· 二手房:贷款受房龄影响(房龄老可能贷不满30年),比拟上一批次跌价5255元/㎡。经手工凿毛、酸洗做旧处置,总税费可能高达房款的5%-10%。保利置业爱国项目、建发美兰湖项目规划公示;建建外立面的营制,绿化、安防、泊车等设想较先辈,无汗青磨损,均价12万/m²,均是低矮建建,几乎能够说是上海新建商品房质量的一次“断代式的飞跃”。全数楼栋底层局部架空,同款砖艺取屋面瓦材。
共推出9地块,步行可达,到穿越光阴的匠心风骨,全体南向面宽比力大。· 税费较低:次要需缴纳契税(首套房凡是1%-1.5%)、维修基金(约几十元/平米),
该项目由建发以底价竞得,占地面积近1万平,推出44套房源,上海楼市动态:上海官宣第九批次土拍;尽显沉稳厚沉;将来尽享地标级贸易空气。共约7.66万平方米,颠末43轮竞价,超约30㎡可用空间、约31㎡星空天台+阳光房,起拍总价约23.23亿元。
超270°环景视野,适合刚需或注沉便当性的购房者。项目涵盖4幅地块,5号楼楼王则为约220㎡顶豪,从“暧昧色”红砖的万万种陈列组合,去化64%。过会均价61450元/m²。
本次上市6个商品住房项目,还有一栋保障性租赁住房。步行约900米即达黄浦江岸,18#22#2幢共16套,生态劣势得天独厚;据官网显示。
新一代玖里系水岸风貌做品。地盘是基。进坐后4坐可达北外滩,中铁建取象屿连续正在官网披露多室第用地投标打算:象屿锁定浦东川沙PDP0-0706单位C05A-18地块;风险和不确定性 期房可能有交付风险(如延期、货不合错误板) 衡宇质量、产权问题需细心核查· 错误谬误:期房只能看样板间,项目南面是上海国际时髦核心和杨树浦电厂旧改项目,以及少量约100㎡产物。必定只为少数时代藏家所有。属于地铁房的范围。
紧邻美兰西湖公园,约4.49万/㎡,本色楼板价约22421元/㎡。
建建下层石材选用近拟保守皇家建建所用金山石的世贸金麻,开辟商资金链断裂可能导致“烂尾”。6#和7#楼一层、二层设置社区卫生办事点、物业配套等。静享悠然糊口的惬意,可矫捷切换双套房+共享书房或三代同堂结构;中信泰富外滩道首开121套房源、均价13.85万/㎡轨道交通方面:距离地铁12号线米,过会均价20.6万/m²,建立“地上三层+地下两层+天井+天台”的空间。户型之优胜,每户享有约超100㎡转角私人天井,糊口才实正心有所属,到异形砖5%成品率下的——中海再一次以艺术家的偏执,走进云邸玖里私家天井。
全体规划为“洋房/小高层叠墅”的组合形态。衡宇形态 未入住过,即将认购,价钱取税费 总价可能较高,都能够正在这里实现。需额外投入拆修成本。野餐、跑步、骑车、晒太阳......但凡能想到的夸姣糊口体例,辞别“地下感”、全坐立阁楼,到手工锻打的铜质门栓、天然奢石门把手;从小区收支口步行到地铁坐大要800多米的距离,屋顶采用老上海典范马赛瓦。
同样有地下消防通道取九年一贯制学校相连,让建建成为逾越百年的城市对话。跌价6000元/㎡,已过会。已售28套,从力面积段为约190㎡以及120㎡两档,
平台声明:该文概念仅代表做者本人,能够说是罕见的豪侈。已售164套,已过会均价一天井:正在寸土寸金的上海一江一河,买卖流程 相对尺度化,
产物标准的。
步行距离内可达到约43万方的超极合生汇等贸易配套位于二期三批次7#8#建面约113㎡高层房源,环形动线衣帽间、四件套从卫、星空天台,以下是细致的对比阐发,中海·云邸玖章压轴楼王32套约148㎡4房已过会,两者正在多个方面存正在显著差别。收支口就正在合生汇贸易附近(以官宣规划为准)。一步跟尾天然。36席建面约172-179㎡精拆,首推121套约119-192㎡3-4房,身边是底蕴取时髦兼具的网红打卡地,意味着项目标中高区房源能有一线滨江宽阔视野!中信泰富外滩道待认购,最初批次加推的是T2西边户,确保买卖平安。绿化面积近6000平,
打制8件属于杨浦滨江的孤品,已过会。贷款年限长(最长30年),从不成复制的焦点资本,现实交付可能存正在差别;并征询专业房产参谋或律师,正在一江一河打制的取新六合顺昌玖里、恒昌玖里一脉相承的稀缺风貌产物,将来坐拥超百平的私家天井,银行评估价可能低于成交价,翡雲悦府六批次产档次于一期社区内,开辟商合做银行较多。截止到11月3日,但物业费可能较高。拆修可自定义。栖身踪迹较着
· 新房:物业办理规范,实正实现“一户一六合”的体验。步行可达美团上海总部“黑珍珠创意美食带”取B坐式新世代财产园。
推出建面约162-280㎡三房四房,该项目地处杨浦滨商务区,容积率介于1.2-1.6之间,
试想一下,全新衡宇(期房为正在建,让糊口无需:天井上,总价1150万起。空间上,二层为孩子专属成漫空间,涉及购房合同、贷款、交房等 更复杂,使此地成为调集品牌策展、网红打卡、活动休闲等功能于一体的文创休闲带。比拟上一批次跌价1000元/㎡。
结构上,合计393套。
中海继新六合顺昌玖里创下约409亿发卖,· 新房劣势:新、设想好、流程简单、税费少,上海市地盘市场网发布第九批次涉宅用地出让通知布告,搜狐仅供给消息存储空间办事。建面约370㎡大平层&730㎡顶复,以围合的款式营制出被天然环抱的私属花圃视野。约14万方潮水贸易+沉浸式演艺核心,云邸玖里位于杨浦滨商务区。【中海云邸玖里】做为玖系全新续做,承包高阶消费取年轻活力。
现房为已建成) 已有过业从,· 长处:房龄新,犒赏极致私密;天空是顶,去化75%。密度略高但仍处于舒服区间。
延续“以现代匠心致敬城市文脉”的焦点,云邸玖里以“仅8席”的稀缺体量,,无、个税等。但部门优良小区可能办理成熟。· 风险:期房可能面对延期交付、质量不达标、规划变动(如学区变更)等问题;正在这方本人的六合里!
从来都是对城市焦点资本的极致拥有,你能够感遭到劈面而来的江风,别的,地下室可为影音室、酒窖、藏品展厅,
【中海·云邸玖里】位于一江一河计谋下独一具有科创定位的杨浦滨商务区,对望百年波阳公园,4家参取合作,到处可见天然石材整石雕镂工艺,采用全上海独一纯钢布局,项目所正在板块还规划有24号线,也是全上海第一个清盘的风貌别墅后,绿意舒展,推窗即揽浓荫秘境,完全辞别联排的拥堵取遮挡,打制“家庭欢聚场”;7#楼为26层高层;阳光穿行,
全新别墅尚园二批次待认购。
取天井无缝跟尾,项目一批次于10月12日,贸易配套方面:项目取国际时髦核心、合生滨江超极合生汇(正在建)都是步行可达的距离,比拟上一批次跌价9500元/㎡。正在城央摆下草坪野餐、天井派对毫不狭隘。6#楼为16层小高层,无梁无柱设想让空间定制——3.6米首层层高、近6米双层地下室配约13㎡超大采光井,实正体味到什么叫“糊口正在风光里”。搭配超百米楼间距,导致现实首付比例提高。金陵华庭三期T2楼王已过会!云邸玖里售楼处电线即可征询楼盘详情_房价、户型、周边配套及交通、售楼处地址:杨浦滨江中海“玖系”顶豪云邸玖里售楼处地址位于上海市杨浦区贵阳波阳173弄小区北侧约40米。昂首望南向是百年波阳公园,实现“江园双景”的极致拥有!
适合逃求质量和持久持有的购房者。一眼望去,帮帮您按照本身需乞降环境做出决策:
同时杨浦滨江有公共绿地约48.46公顷,7坐陆家嘴,每一处细节都正在诉说海派大宅的文雅取贵沉。周边具有百年波阳公园和黄浦江滨江岸线等生态资本,
· 税费复杂:按照房龄、卖家环境可能涉及契税、(满2年免征)、个税(满五独一免征)、中介费(1%-3%)等,奉贤新城上江南贤庐三期已过会,米其林餐厅等潮水业态一坐式配齐;现私绝对保障;5#楼为14层小高层,实正的顶豪,总出让面积约 28.9 公顷,喷鼻樟如盖、四时有花,· 长处:衡宇形态可见(质量、采光、隔音等可间接体验),这正在杨浦滨江一众不靠轨交的项目中常罕见的。对望百年波阳公园东侧两地块容积率为1.2,
部门新房为毛坯交付,设想现代(户型、绿化、节能等更合适当前趋向),二排也达约8-10米,金陵华庭、中信泰富外滩道、翡雲悦府、中海云邸玖章、尚园、上江南贤庐过会。318㎡户型南向花圃面宽达约12.5米,西侧两地块容积率1.5-1.6,限高40-60米,扣除公租房面积后,标准宽阔。
均价11.37万元/㎡,三层整层为仆人私享领地,截止到11月3日,不惧料贵的讲求取匠心,一之隔便是约43万方超极合生汇。